PVC-U H44F-10U Swing Type Check Valve DN15-300 GB Standard

Competitive price PVC-U Swing Type Check Valve Wafer Type DN15-DN300 Plastic Valves For Drain and chemical industry
Origin: China
Brand Name: KXPV
Model Number: H44F-10U
Application: General
Material: Plastic
Temperature of Media: Medium Temperature, Normal Temperature
Pressure: Medium Pressure
Power: Manual
Media: Acid
Port Size: DN15-DN300
Structure: Check
Product name: Wafer Check valve
Delivery Time: 7 Days
MOQ:1 Piece
Color: Grey
Supply Ability: 10000 Piece/Pieces per Month

Pressure Class: 1.0Mpa(10bar)

Product Structural Features

1.To prevent the phenomenon of liquid counter-current to protect the pump equipment.
2.Because it is a cantilever check valve, there is less resistance to flow.
3.Using all plastic materials, it provides outstanding resistance to corrosive fluids such as acids and alkalis.
4.Not only remove the valve body from the piping, but also open the bonnet for internal inspection and maintenance.

 

App Temperature Bound List

 

Material        Medium temperature℃ Material Medium temperature℃
PVC-C -20℃~+95℃ PVC-U -5℃~+45℃
FRPP -20℃~+120℃ PPH -20℃~+110℃
PVDF 40℃~+150℃

Part Material Table

No.

Name

Material

1

Cap nut

FRPP

2

Bonnet

FRPP,PVDF,PVC-C,PVC-U,PPH

3

Rocker

FRPP,PVDF,PVC-C,PVC-U,PPH

4

Capping

FRPP,PVDF,PVC-C,PVC-U,PPH

5

Sealing ring

EPDM,FPM

6

Seal nut

FRPP,PVDF,PVC-C,PVC-U,PPH

7

Connecting rod

FRPP,PVDF,PVC-C,PVC-U,PPH

8

Body

FRPP,PVDF,PVC-C,PVC-U,PPH

9

Hexagon bolt

Steel,StainlessSteel

10

O-rings

EPDM,FPM

11

Hexagon bolt

FRPP,PVDF,PVC-C,PVC-U,PPH

12

Filling plece

Steel,StainlessSteel

13

Hexagonal nut

Steel,StainlessSteel

 

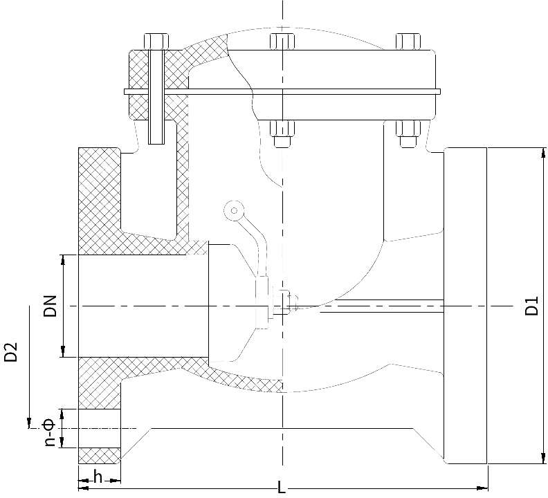
Swing Type Check Valve Assembly Detail Drawing

 

Dimension List

 

DN(mm) D d L b n-Φ
GB JIS ANSI GB JIS ANSI
15(1/2") 115  65  70  160  18  4-Φ14 4-Φ15
20(3/4") 115  75  75  69.9  160  18  4-Φ14 4-Φ15 4-Φ16
25(1") 115  85  90  79.4  160  18  4-Φ18 4-Φ19 4-Φ16
32(11/4") 145  100  100  170  20  4-Φ18 4-Φ19
40(11/2") 145  110  105  98.4  170  20  4-18 4-Φ19 4-Φ16
50(2") 160  125  120  120.7  200  21  4-Φ18 4-Φ19 4-Φ18
65(21/2") 180  145  140  139.7  245  25  4-Φ18 4-Φ19 4-Φ18
80(3") 195  160  150  152.4  265  26  8-Φ18 8-Φ19 4-Φ18
100(4") 230  180  175  190.5  300  26  8-Φ18 8-Φ19 8-Φ18
125(5") 250  210  210  215.9  350  30  8-Φ18 8-Φ23 8-Φ22
150(6") 280  240  240  241.3  400  30  8-Φ22 8-Φ23 8-Φ22
200(8") 340  295  290  298.5  500  30  8-P22 12-Φ23 8-Φ22
250(10") 390  350  355  362  575  38  12-Φ22 12-Φ25 12-Φ26
300(12") 445  400  400  575  38  12-p22 16-Φ25

 

 
Message Feedback
About Us
Kaixin Pipeline Technologies Co., Ltd.
Founded in 1999, Kaixin Pipeline Technologies Co., Ltd. is a high-tech enterprise integrating R&D, manufacturing, sales, and service. As a famous China PVC-U H44F-10U Swing Type Check Valve DN15-300 GB Standard Suppliers and PVC-U H44F-10U Swing Type Check Valve DN15-300 GB Standard Factory, the company holds multiple prestigious certifications, including National High-Tech Enterprise, “Little Giant” Specialized and Sophisticated SME, National Single Product Champion (Cultivation), Provincial Technology-based SME, Ningbo Specialized and Sophisticated SME, Ningbo Single Product Champion (Cultivation), Ningbo Polymer Pipe & Valve Technology R&D Center, District-Level Green Factory, Ningbo Four-Star Management Innovation Enterprise, and Enterprise Data Management Capability Maturity Level 2.
We specialize in developing, producing, and supplying non-metallic corrosion-resistant products for chemical applications, including plastic valves, pipes, pipe fittings, and corrosion-resistant pumps. Our product portfolio spans materials such as PVC-C, PVC-U, PVDF, PPH, and FRPP, with a comprehensive range of types and specifications. Notably, our butterfly valves can reach DN1000 in diameter, while pipes and fittings extend up to DN800, addressing market gaps and maintaining our competitive edge in the industry.
Guided by the principle of “Technology-Driven, Keeping Pace with the Times,” Kaixin allocates nearly RMB 10 million annually to R&D. We ensure superior product quality through standardized automated manufacturing and strict sourcing of imported raw materials. Aligned with our international development strategy, we continuously monitor global market trends and leverage digital channels to bring high-quality “Made in China” products to customers worldwide.
Ningbo • Fenghua R&D & Production Base
With a total investment of RMB 200 million, Kaixin Ultra-Pure Pipe Technology (Ningbo) Co., Ltd. has established a new materials laboratory in collaboration with universities and research institutes, built a modern manufacturing base, and installed 8 fully automated production lines for modified plastics and 8 for polymer materials. The facility is dedicated to the R&D, production, and application of new modified plastics and polymer materials. Kaixin is also committed to attracting top talent across disciplines, continuously driving product innovation and brand development, with the goal of becoming a globally recognized leader in the R&D and manufacture of polymer valves, pipes, and fittings.
Certificate Of Honor
  • honor
  • honor
  • honor
  • honor
  • honor
  • honor
  • honor
  • honor
  • honor
News