App Temperature Bound List
Material        Medium temperature℃ Material Medium temperature℃
PVC-C -20℃~+95℃ PVC-U -5℃~+45℃
FRPP -20℃~+120℃ PPH -20℃~+110℃
PVDF 40℃~+150℃

Product Structural Features

1. Lightweight: PVC-U is only 1/10 the weight of cast iron, making it easy to transport and install, reducing costs.
2. Superior Chemical Resistance: PVC-U has excellent resistance to acids and alkalis, with the exception of strong acids and alkalis near their saturation point.
3. Durable: PVC-U offers excellent weather resistance and is resistant to corrosion by bacteria and fungi.
4. Non-conductive: PVC-U is non-conductive and is not susceptible to corrosion by electrolysis or electric current, eliminating the need for secondary processing. It is non-flammable and does not support combustion, eliminating fire safety concerns.
5. Low resistance and high flow rate: The smooth inner wall minimizes fluid flow loss, and dirt is less likely to adhere to the smooth pipe surface, making maintenance simple and cost-effective.
6. Easy Installation and Low Cost: Cutting and joining are simple. PVC glue has proven to be safe, reliable, easy to use, and cost-effective.

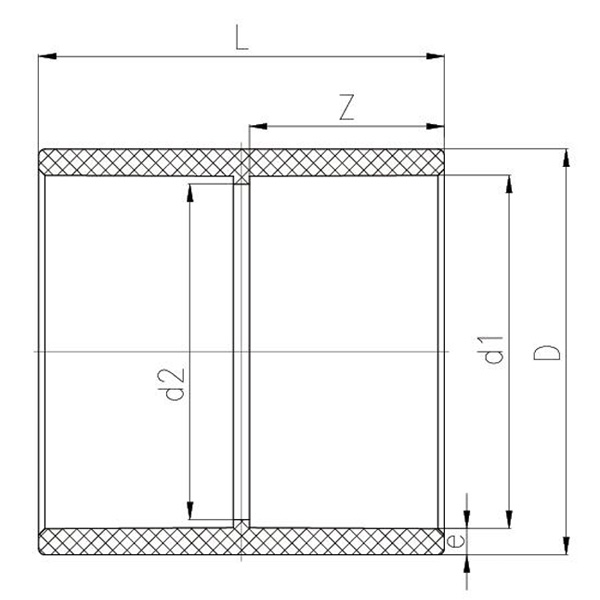
PVC-U Coupling

DN D d1 d2 L Z e
15 27 20 18 35 16 3.5
20 32 25 23 40 18.5 3.5
25 40 32 30 47 22 4
32 50 40 38 55 26 5
40 61 50 47 65 31 5.5
50 75 63 60 80 37.5 t6
65 88 75 72 92 44 6.5
80 104 90 86 107 51 7
100 127 110 105 127 61 8.5
125 161 140 134 158 76 10.5
150 184 160 154 180 86 12
200 249 225 219 247 118.5 12
250 309 280 272 303 146 14.5
300 346 315 306 338 163. 5 15.5
350 392 355 349 380 184 18.5
400 440 400 393 430 206 20
450 494 450 430 477 231 22
500 548 500 480 527 256 24
600 692 630 600 657 321 31
700 758 710 690 737 361 22.5
800 843 800 780 830 406 20
Message Feedback
About Us
Kaixin Pipeline Technologies Co., Ltd.

Founded in 1999, Kaixin Pipeline Technologies Co., Ltd. is a high-tech enterprise integrating R&D, manufacturing, sales, and service. The company holds multiple prestigious certifications, including National High-Tech Enterprise, “Little Giant” Specialized and Sophisticated SME, National Single Product Champion (Cultivation), Provincial Technology-based SME, Ningbo Specialized and Sophisticated SME, Ningbo Single Product Champion (Cultivation), Ningbo Polymer Pipe & Valve Technology R&D Center, District-Level Green Factory, Ningbo Four-Star Management Innovation Enterprise, and Enterprise Data Management Capability Maturity Level 2.

We specialize in developing, producing, and supplying non-metallic corrosion-resistant products for chemical applications, including plastic valves, pipes, pipe fittings, and corrosion-resistant pumps. Our product portfolio spans materials such as PVC-C, PVC-U, PVDF, PPH, and FRPP, with a comprehensive range of types and specifications. Notably, our butterfly valves can reach DN1000 in diameter, while pipes and fittings extend up to DN800, addressing market gaps and maintaining our competitive edge in the industry.

Guided by the principle of “Technology-Driven, Keeping Pace with the Times,” Kaixin allocates nearly RMB 10 million annually to R&D. We ensure superior product quality through standardized automated manufacturing and strict sourcing of imported raw materials. Aligned with our international development strategy, we continuously monitor global market trends and leverage digital channels to bring high-quality “Made in China” products to customers worldwide.

Ningbo • Fenghua R&D & Production Base

With a total investment of RMB 200 million, Kaixin Ultra-Pure Pipe Technology (Ningbo) Co., Ltd. has established a new materials laboratory in collaboration with universities and research institutes, built a modern manufacturing base, and installed 8 fully automated production lines for modified plastics and 8 for polymer materials. The facility is dedicated to the R&D, production, and application of new modified plastics and polymer materials. Kaixin is also committed to attracting top talent across disciplines, continuously driving product innovation and brand development, with the goal of becoming a globally recognized leader in the R&D and manufacture of polymer valves, pipes, and fittings.
Certificate Of Honor
  • 一种化工用超大型蝶阀
  • 一种抗腐蚀耐热改性塑料及其制备工艺
  • 一种耐紫外老化纳米改性塑料及其制备工艺
  • 一种移动式塑料管道切割装置
  • 一种方便收纳隐藏的饮用水管道阀门
  • 化工用超大型蝶阀
  • 一种蝶阀阀瓣结构
  • 一种蝶阀阀体结构及控制阀
  • 一种法兰球阀结构
  • 一种隔膜阀
  • 一种隔膜阀执行机构
  • 一种管道连接用法兰